ЭКСПЕРТНАЯ ПОМОЩЬ
БЫСТРАЯ ДОСТАВКА
УДОБНАЯ ОПЛАТА
Твердотопливный котел Neus Praktik – это высококачественное отопительное оборудование, сочетающее в себе надежность, долговечность и простоту использования. Благодаря продуманной конструкции с верхним дымоходом этот котел идеально подходит для владельцев частных домов, коттеджей и небольших коммерческих объектов. Мощность 12 кВт позволяет эффективно обогревать помещение площадью от 100 до 120 м², обеспечивая комфорт и тепло в вашем доме.
Neus Praktik – это котел длительного горения с верхним дымоходом, сочетающий в себе передовые технологии и надежность. Его конструкция подразумевает водонаполненные колосники, изготовленные из бесшовных труб, что обеспечивает дополнительный теплообмен от догорающего топлива и повышает эффективность отопления. Глубокая топочная камера имеет дополнительную полочку-зуб на задней стенке теплообменника, которая способствует более полному сгоранию топлива и увеличивает КПД котла.
Загрузочные дверцы котла имеют оптимальные размеры для удобной загрузки топлива, а нижняя колосниковая дверца узкая, что делает котел идеальным для использования древесины в качестве основного топлива. Теплообменник котла изготовлен из высококачественной стали толщиной 5 мм, что обеспечивает прочность и долговечность. Водяная оболочка по периметру корпуса и пласт теплоизоляции толщиной 5 см под обшивкой котла способствуют сохранению тепла и повышают эффективность работы оборудования.


| Параметр | Од. виміру | Норма для котла Неус Практік | |||||
| Номінальна потужніст котла | кВт | 12 | 15 | 20 | 25 | 30 | |
| Площа поверхні теплообміну в котлі | м2 | 1,8 | 2,4 | 2,6 | 2,9 | 3,1 | |
| Розміри топки | глибина | мм | 450 | 520 | 560 | 600 | 640 |
| ширина | мм | 285 | 285 | 285 | 285 | 285 | |
| висота | мм | 485 | 485 | 535 | 585 | 645 | |
| об’єм | дм3 | 62 | 72 | 85 | 100 | 118 | |
| Водяна ємність котла | л | 55 | 73 | 82 | 91 | 102 | |
| Маса котла без води | кг | 180 | 195 | 215 | 235 | 255 | |
| Рекомендована мінімальна температура води | °C | 58 | 58 | 58 | 58 | 58 | |
| Максимальна температура води | °C | 85 | 85 | 85 | 85 | 85 | |
| Номінальний тиск води | МПа | 0,15 | 0,15 | 0,15 | 0,15 | 0,15 | |
| Споживання електроенергії (контролер + вентилятор) | Вт | 85 | 85 | 85 | 85 | 85 | |
| Приєднувальні (зовнішній діаметр) розміри борова | мм | 159 | 159 | 159 | 159 | 159 | |
| Діаметр патрубків прямої і зворотної мережної води (Ду) | мм | 40 | 50 | 50 | 50 | 50 | |
| Рекомендовані параметри димоходу | |||||||
| площа перерізу | см2 | 200 | 200 | 200 | 200 | 200 | |
| внутрішній діаметр | мм | 160 | 160 | 160 | 160 | 160 | |
| висота (мінімально допустима) | м | 5 | 5 | 5 | 6 | 7 | |
| Діаметр штуцера під запобіжний клапан (Ду) | мм | 15 | 15 | 15 | 15 | 15 | |
| Необхідна величина тиску спрацьовування запобіжного клапана | МПа | 0,2 | 0,2 | 0,2 | 0,2 | 0,2 | |
| Параметр | Од. виміру | Норма для котла Neus Практик | |||||
| Номінальна потужність котла | кВт | 12 | 15 | 20 | 25 | 30 | |
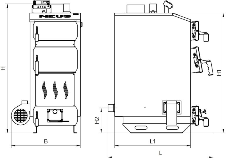
| Габаритні розміри котла | B | мм | 450 (620) | 450 (620) | 450 (620) | 450 (620) | 450 (620) |
| H | 1190 | 1190 | 1240 | 1290 | 1350 | ||
| H1 | 1075 | 1075 | 1125 | 1175 | 1235 | ||
| H2 | 224 | 224 | 224 | 224 | 224 | ||
| L | 870 | 945 | 985 | 1025 | 1065 | ||
| L2 | 610 | 680 | 720 | 760 | 800 | ||