ЭКСПЕРТНАЯ ПОМОЩЬ
БЫСТРАЯ ДОСТАВКА
УДОБНАЯ ОПЛАТА
Neus Joker Pellet 50 кВт – современный автоматизированный твердотопливный котел, предназначенный для эффективного и стабильного отопления жилых и коммерческих объектов. Разработанный на основе проверенной модели Neus Joker, котел адаптирован для сжигания деревянных пеллет и сочетает высокую мощность, простоту эксплуатации и надежность.
Neus Joker Pellet – это оптимальное решение для владельцев частных домов, коттеджей или малых предприятий, стремящихся уменьшить расходы на энергоносители и получить стабильную теплогенерацию с минимальным человеческим вмешательством.
1. Интеллектуальная автоматизация
Автоматический контроль подачи топлива, разжигания и поддержания температуры обеспечивает комфорт пользователя без необходимости постоянного вмешательства.
2. Прочная и долговечная конструкция
Качественная котловая сталь толщиной 6 мм, тщательная сварка и усиленная конструкция гарантируют стабильную работу в течение многих отопительных сезонов.
3. Простота технического обслуживания
Благодаря подвижным колосникам и самоочищающейся системе уменьшается частота чистки, что упрощает ежедневную эксплуатацию.
4. Гибкий режим работы
Neus Joker Pellet легко переходит в ручной режим, что позволяет использовать альтернативное топливо или эксплуатировать котёл без автоматики при необходимости.
5. Энергоэффективность и экономия
Благодаря высокому КПД и рациональному использованию топлива, котел позволяет существенно снизить расходы на отопление.
6. Безопасность и контроль
Интегрированные датчики температуры, давления и тяги обеспечивают надежную работу котла и предохраняют систему от перегрева и сбоев.
Котел Neus Joker Pellet 50 кВт является идеальным решением для:

| Параметр | Од. виміру | Норма для котла Neus Joker Pellet | ||||||||||||
| Номінальна потужніст котла | кВт | 24 | 27 | 36 | 40 | 50 | 60 | 75 | 98 | 120 | 150 | 200 | 250 | |
| Площа поверхні теплообміну в котлі | м2 | 2,4 | 2,7 | 3,3 | 3,9 | 4,3 | 5,1 | 5,7 | 8 | 8,6 | 9,5 | 13,3 | 17,5 | |
| Ємніть бункера для палива | дм3 | 300 | 300 | 300 | 300 | 500 | 500 | 500 | 700 | 700 | 1000 | 1000 | 1000 | |
| Водяна ємність котла | л | 107 | 117 | 142 | 160 | 175 | 195 | 215 | 300 | 320 | 345 | 445 | 560 | |
| Маса котла без води | кг | 374 | 415 | 470 | 515 | 560 | 740 | 970 | 1050 | 1100 | 1200 | 1570 | 1900 | |
| Температура топочних газів на виході з котла | °C | 100-180 | 100-180 | 100-180 | 100-180 | 100-180 | 100-180 | 100-180 | 100-180 | 100-180 | 100-180 | 100-180 | 100-180 | |
| Рекомендована мінімальна температура води | °C | 58 | 58 | 58 | 58 | 58 | 58 | 58 | 58 | 58 | 58 | 58 | 58 | |
| Максимальна температура води | °C | 85 | 85 | 85 | 85 | 85 | 85 | 85 | 85 | 85 | 85 | 85 | 85 | |
| Номінальний тиск води | МПа | 0,15 | 0,15 | 0,15 | 0,15 | 0,2 | 0,2 | 0,2 | 0,2 | 0,2 | 0,2 | 0,2 | 0,2 | |
| Споживання електроенергії в роботі | Вт | 80 | 80 | 80 | 80 | 80 | 80 | 80 | 100 | 100 | 100 | 500 | 500 | |
| Споживання електроенергії при розпалюванні | Вт | 800 | 800 | 800 | 800 | 800 | 800 | 800 | 800 | 800 | 800 | 1200 | 1200 | |
| Діаметр патрубків прямої і зворотної мережної води (Ду) | мм | 50 | 50 | 50 | 50 | 50 | 50 | 65 | 65 | 80 | 80 | 100 | 100 | |
| Рекомендовані параметри димоходу | ||||||||||||||
| площа перерізу | см2 | 201 | 201 | 248 | 248 | 377 | 452 | 452 | 660 | 660 | 660 | 908 | 1194 | |
| внутрішній діаметр | мм | 160 | 160 | 180 | 180 | 220 | 250 | 250 | 300 | 300 | 300 | 350 | 400 | |
| висота (мінімально допустима) | м | 5 | 5 | 5 | 5 | 6 | 6 | 7 | 7 | 7 | 8 | 9 | 10 | |
| Діаметр штуцера під запобіжний клапан (Ду) | мм | 15 | 15 | 15 | 15 | 20 | 20 | 20 | 25 | 25 | 50 | 50 | 50 | |
| Необхідна величина тиску спрацьовування запобіжного клапана | МПа | 0,2 | 0,2 | 0,2 | 0,2 | 0,25 | 0,25 | 0,25 | 0,25 | 0,25 | 0,25 | 0,25 | 0,25 | |

| Параметр | Од. виміру | Норма для котла Неус Джокер | ||||||||||||
| Номінальна потужність котла | кВт | 24 | 27 | 36 | 40 | 50 | 60 | 75 | 98 | 120 | 150 | 200 | 250 | |
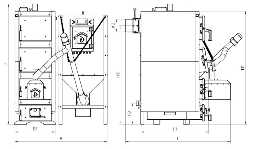
| Габаритні розміри котла | B, мінімум | мм | 1150 | 1190 | 1190 | 1235 | 1345 | 1410 | 1410 | 1765 | 1765 | 1910 | 2105 | 2300 |
| B1 | 500 | 540 | 540 | 585 | 585 | 650 | 650 | 865 | 865 | 865 | 1065 | 1265 | ||
| H | 1520 | 1520 | 1650 | 1750 | 1800 | 1800 | 1800 | 2020 | 2020 | 2020 | 2020 | 2020 | ||
| H1 | 1425 | 1425 | 1550 | 1650 | 1700 | 1700 | 1700 | 1900 | 1900 | 1900 | 1900 | 1900 | ||
| Н2 | 1242 | 1243 | 1367 | 1467 | 1517 | 1515 | 1515 | 1685 | 1685 | 1685 | 1660 | 1660 | ||
| Н3 | 265 | 265 | 265 | 266 | 268 | 266 | 238 | 258 | 265 | 265 | 278 | 278 | ||
| L | 1320 | 1370 | 1420 | 1440 | 1480 | 1625 | 1965 | 2135 | 2210 | 2390 | 2460 | 2665 | ||
| L1 | 850 | 890 | 940 | 940 | 980 | 1030 | 1130 | 1200 | 1270 | 1370 | 1570 | 1730 | ||
| D | 159 | 178 | 178 | 178 | 219 | 245 | 245 | 298 | 298 | 298 | 348 | 398 | ||
Компанія пропонує повний супровід — від підбору моделі до рекомендацій з монтажу та налаштування. Залишилися питання щодо технічних характеристик або комплектації?
+38 (098) 633-95-55
+38 (066) 633-95-55
+38 (093) 264-95-55
Наші технічні спеціалісти допоможуть обрати оптимальну модель, розрахують теплове навантаження та нададуть професійні поради.